
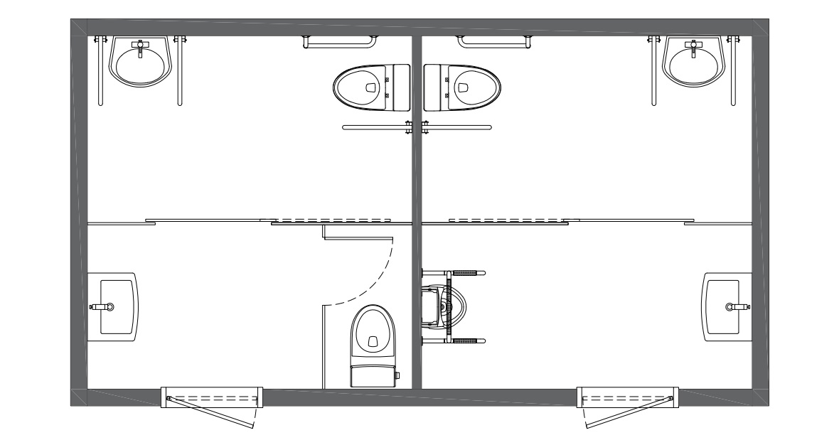
KJ-F61
¸ð¹ÙÀÏ ÈÀå½Ç
¹°Ç°½Äº°¹øÈ£ : 25181111
°¡°Ý : 48,000,000



±¸ Á¶ : °ñÁ¶½Ä
¿ÜÀåÀç : ÇÕ¼º¸ñÀç / ÆÄº®µ¹ / CRCº¸µå
³»ÀåÀç : ÀÎÅ׸®¾îº¸µå / ŸÀÏ
[Àû¿ë½Ã½ºÅÛ]
µ¿ÆÄ¹æÁö½Ã½ºÅÛ / ȯ±âÀåÄ¡ / ÀÎü°¨ÁöÇü½Ã½ºÅÛ / ³Ã³¹æ½Ã½ºÅÛ / ÇÚµå µå¶óÀ̾î


KJ-F61 : 6100¡¿3350¡¿3200

KB-F61 : 6100¡¿3350¡¿3200
BF ÀÎÁõ ±Ô°Ý µµ¸é


